沙河口区胜利路251号10层1号--星海悦庭C2-1-10-1住宅(图文)

7.8 万元/年 (未出租)

10层(共37层)
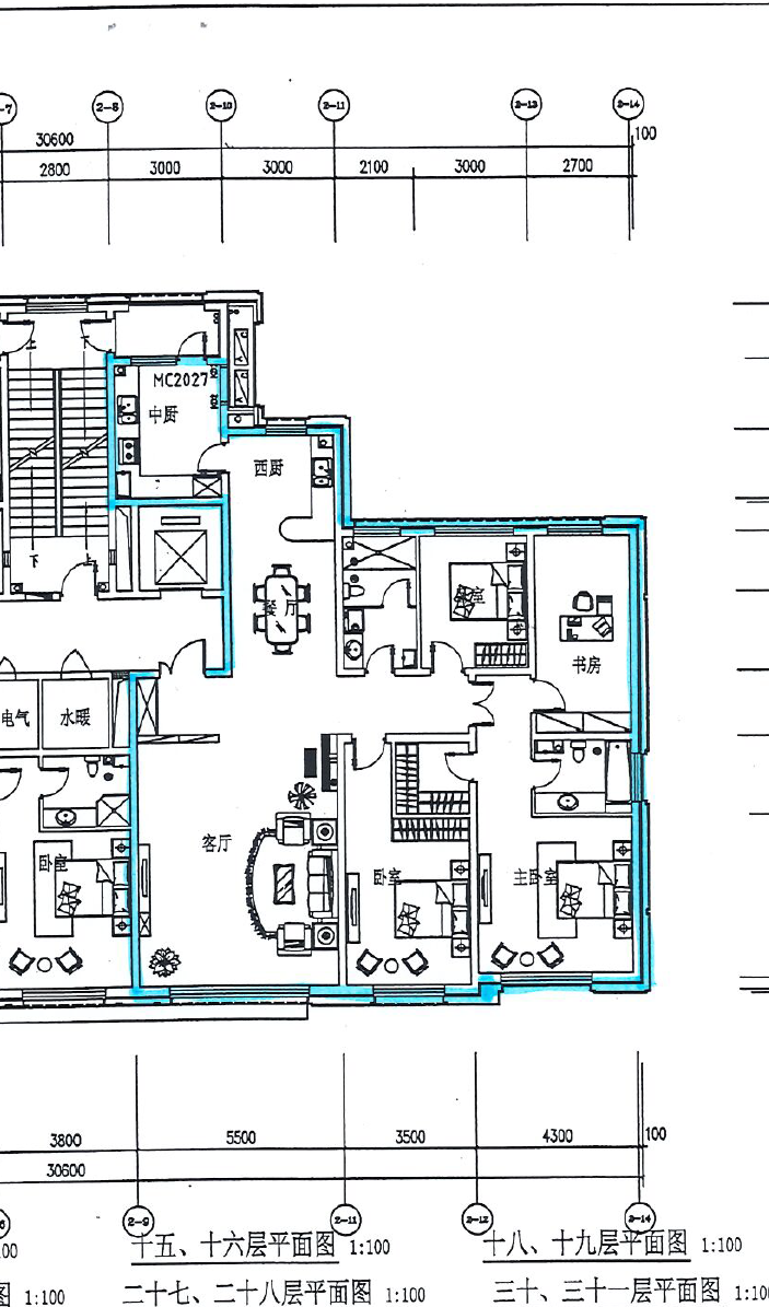
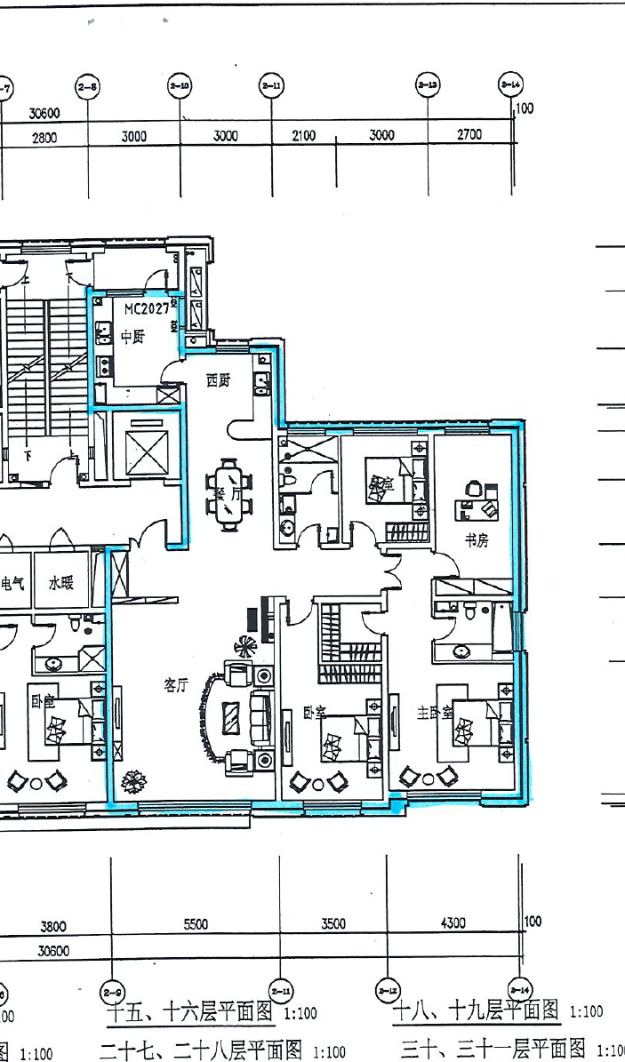
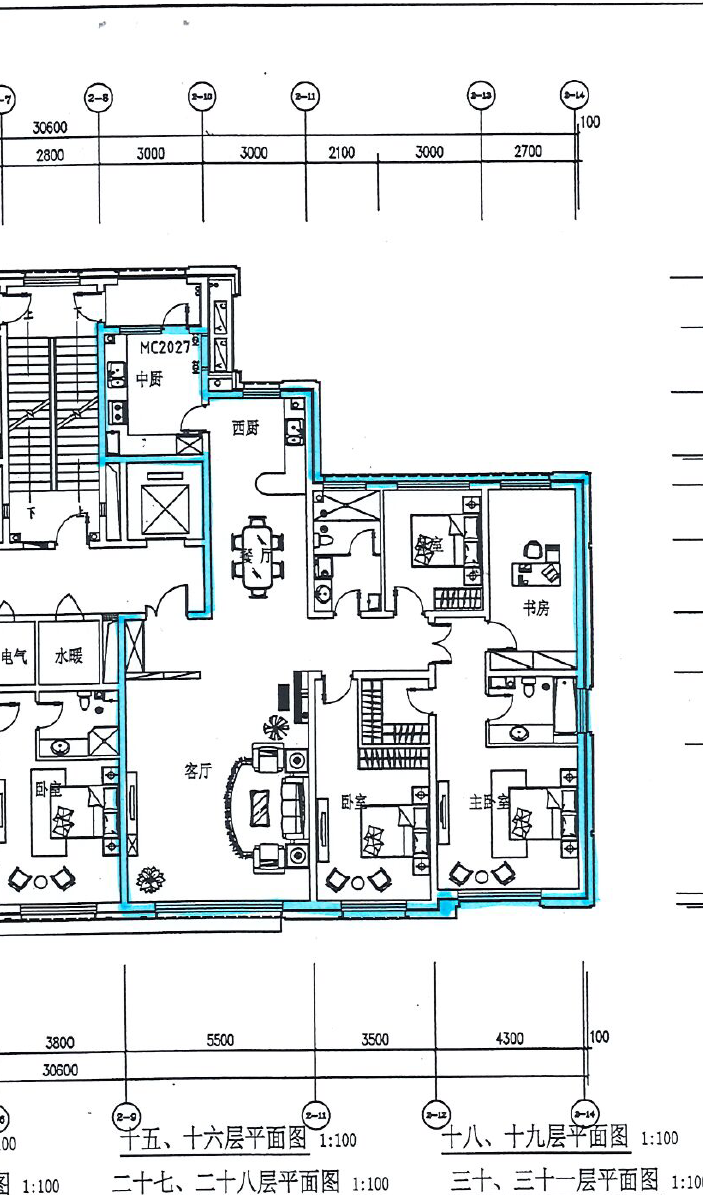
210.48平方米
  • 联  系  人    徐英齐
  • 联系电话    88893869

项目基本信息

  • 项目名称   沙河口区胜利路251号10层1号--星海悦庭C2-1-10-1住宅(图文)
  • 租赁价格    7.8万元/年
  • 租赁面积    210.48平方米
  • 租赁期限    3-10年
  • 挂牌日期   2019-01-04
  • 挂牌截止日     0000-00-00
  • 房屋状态     闲置
  • 房屋性质    住宅
  • 产权单位    大连市经济技术协作有限公司
  • 联系方式    联系人:徐英齐   联系电话: 88893869
  • 展示时间    工作日8:30-11:30,13:00-17:30

项目详细信息

  • 详细地址   大连市沙河口区胜利路251号10层1号
  • 所在楼层    10层(共37层)
  • 装修情况     清水
  • 免 租 期    2个月
  • 租金交纳方式     年缴纳
  • 租赁保证金    3个月房租
  • 物业管理公司    大连星海融汇物业管理有限公司
  • 物业管理费    3元/平/月
  • 交通配套
    项目位于胜利路与白山路交汇处,交通出行便利,周边公交有22,23,406,531,27,506,18路等。
  • 配套设施
    星海悦庭为封闭式管理小区,毗邻星海广场和平广场,户型为南北通透,十分方正,全明户型采光充足,一梯一户。
  • 周边环境
    周边有便利店、银行、医院、超市、学校等,配套设施齐全。
  • 其他费用
    承租方因使用该房屋产生的包括但不限于物业管理费、采暖费、水电费、网络费、电话费及其他费用,由承租方自行承担 购买方购买房屋需承担大连产权交易所的交易费用,并自行承担办理过户手续需缴纳的费用,
  • 其他披露    出售价格350万元